Planungs- und Gestaltungsservice für Gewerbetreibende

 

Sie benötigen einen neuen Empfangstresen oder eine komplette Gastronomieeinrichtung? Bei colourform sind Sie richtig. Bei uns erhalten Sie stets individuelle Lösungen vom kleinen Funktionsmöbel über Objekt- und Büroeinrichtung bis zur Gastronomie- und Ladeneinrichtung. Auf Wunsch erhalten Sie die visuelle Kommunikation mit CI-Logo, Geschäftspapiere und Webpräsenz. Sie haben einen einzigen Ansprechpartner, der Ihnen für alle Belange partnerschaftlich zu Seite steht.

 

Das können Sie erwarten:

  • einzigartige Raumkonzepte, auf Ihre Ansprüche zugeschnitten
  • alle Bauleistungen aus einer Hand
  • alle Elemente des Corporate Designs 
  • Pressearbeit, die wirkt

 


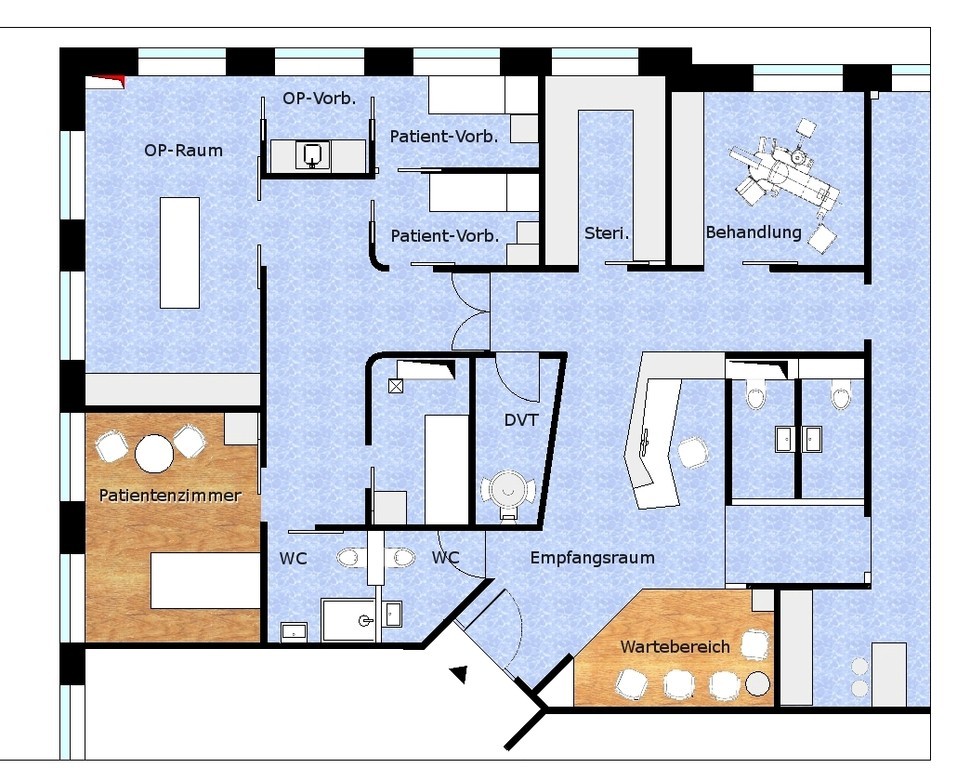
Mit einem kleinen Grundriss fängt bei colourform oft etwas Großartiges an.

Der nächste Schritt: Dreidimensionale, maßstabsgetreue Bilder

Wie heisst es so schön: Ein Bild sagt mehr als tausend Worte. Aus diesem Grund, bieten wir gleich nach der Grundrisszeichnung dreidimensionale, maßstabsgetreue Entwürfe an. Dies soll Ihnen stets Transparenz und somit Sicherheit geben. Lassen Sie sich von unseren 3-D Entwürfen begeistern.

Das Ergebnis unserer gemeinsamen Arbeit

Gelungene Innenarchitektur- oder Designprojekte können unsere Interieurfotografen gleich nach der Fertigstellung fotografieren. 

Die Fotos lassen sich für Webdesign, Anzeigen, Produkt- und Unternehmenspräsentationen oder für PR-Arbeit verwenden. Auch die Öffentlichkeitsarbeit, oder auch PR-Arbeit genannt, kann bei besonderen Projekten durch uns erfolgen. Alle Leistungen können Sie bei uns aus einer Hand erhalten. So haben Sie Ihren Kopf frei für Ihr eigentliches Geschäft.

 

 

 

Unsere Internetseite

läuft mit grünem Strom.

 

Kontakt:

 

Herforder Str. 177 A

33609 Bielefeld

Durch euren Kauf unterstützt ihr unsere Spendenaktion für

 

" skate - aid "

 

 

Vielen Dank für eure Unterstützung.

 

Druckversion | Sitemap
Impressum
colourform ©, Raumplanung und Marketingdienste